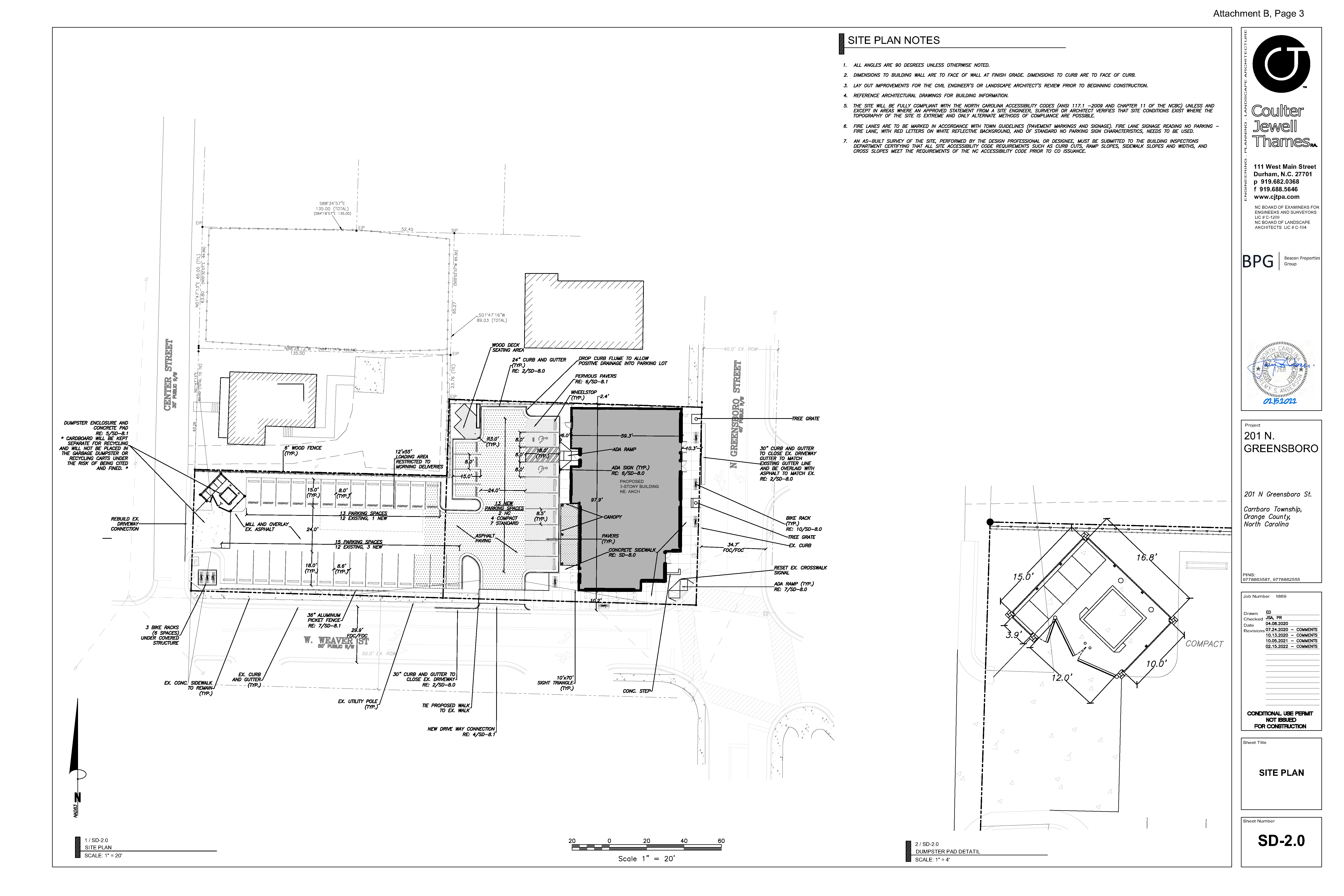
- Applicant: CKE III, LLC
- Address: 201 N Greensboro St
- Description: Three story commercial building on .20 acres.
- Status: SUP-A approved. Construction plans not yet submitted.
For further information on this project, please visit the project page on PIPER by clicking here.